tổng quan dự án căn hộ a&t saigon riverside

| Tên dự án | A&T Sài Gòn Riverside |
| Vị trí | số 20 đường 17A, Phường Bình Hòa, TP Hồ Chí Minh |
| Chủ đầu tư | Công ty Cổ phần Tư vấn Phát triển Đô thị A&T Bình Dương |
| Quy mô | 7.684 m2 |
| Mật độ xây dựng | 45% |
| Loại hình | Căn hộ, shophouse, |
| Pháp lý dự án | Đã có giấy phép xây dựng, 1/500, Chữa cháy, Chấp Thuận Đầu Tư,.. |

vị trí dự án căn hộ a&t saigon riverside
Dự án căn hộ A&T Sài Gòn Riverside tọa lạc tại số 20 đường 17A, phường Bình Hòa, sở hữu vị trí chiến lược ngay trên mặt tiền Quốc lộ 13 – trục giao thông huyết mạch kết nối TP.HCM với các tỉnh lân cận. Nhờ nằm tại cửa ngõ giáp ranh TP.HCM, dự án mang đến khả năng di chuyển thuận lợi, giúp cư dân nhanh chóng tiếp cận trung tâm thành phố cũng như các khu vực quan trọng.
Một trong những điểm nhấn nổi bật của dự án là tầm nhìn trực diện sông Sài Gòn, mang lại không gian sống thoáng đãng, mát mẻ và giàu sinh khí. Yếu tố phong thủy này được nhiều gia chủ đánh giá cao bởi khả năng hỗ trợ sức khỏe, tinh thần và tạo cảm giác thư thái sau ngày dài làm việc.
Bên cạnh đó, cư dân A&T Sài Gòn Riverside còn được hưởng lợi từ hệ thống tiện ích ngoại khu phong phú như chợ, trường học, siêu thị, trung tâm thương mại tại khu vực Bình Dương. Với vị trí sát cạnh Thành phố Thủ Đức, người dân cũng dễ dàng tiếp cận các dịch vụ giáo dục, giải trí và mua sắm hiện đại, đáp ứng trọn vẹn nhu cầu sinh hoạt hằng ngày.

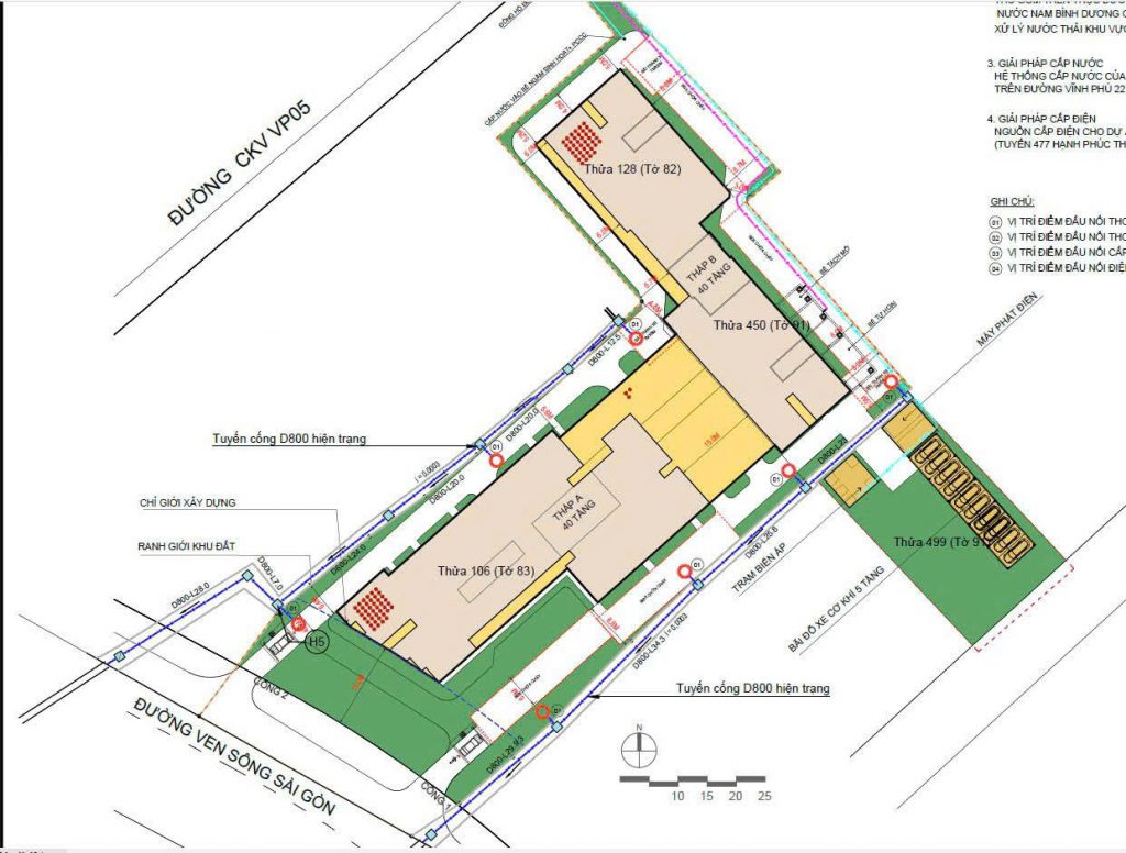
mặt bằng dự án căn hộ a&t saigon riverside


tiện ích dự án căn hộ a&t saigon riverside
Căn hộ AT Sài Gòn Riverside do A&T Group đầu tư phát triển, sở hữu hơn 25 tiện ích nội khu cao cấp, đáp ứng trọn vẹn nhu cầu sinh hoạt, thư giãn, nâng cao sức khỏe và giải trí của cư dân. Dự án hướng đến việc kiến tạo một không gian sống toàn diện, kết hợp hài hòa giữa thiên nhiên xanh mát và những tiện nghi hiện đại, mang lại phong cách sống sang trọng nhưng vẫn gần gũi, thư thái.
Không gian sống xanh – an yên giữa lòng phố
Khu công viên nội khu cùng các mảng xanh trải dọc bờ sông tạo nên bầu không khí trong lành, mang đến cảm giác thư giãn và giúp cư dân tái tạo năng lượng mỗi ngày.
Hồ bơi tràn bờ chuẩn resort đem đến trải nghiệm nghỉ dưỡng ngay tại nhà, nơi cư dân có thể tận hưởng những phút giây thư thái giữa thiên nhiên.
Nâng cao sức khỏe & vận động mỗi ngày
Phòng gym được trang bị đầy đủ máy móc hiện đại cùng khu thể thao ngoài trời giúp cư dân duy trì thói quen vận động, tăng cường sức khỏe.
Khu spa – chăm sóc sức khỏe với đội ngũ chuyên viên giàu kinh nghiệm hỗ trợ thư giãn, giải tỏa căng thẳng và cân bằng tinh thần.
Giải trí & kết nối cộng đồng
Khu vui chơi trẻ em an toàn, nhiều trò vận động kích thích bé phát triển thể chất và tư duy.
Khu sinh hoạt cộng đồng, clubhouse là điểm hẹn lý tưởng cho các sự kiện, hoạt động gắn kết cư dân.
Café và hệ thống nhà hàng Á – Âu mang đến trải nghiệm ẩm thực phong phú, thích hợp cho những buổi gặp gỡ, trò chuyện.
Thư viện và khu học tập yên tĩnh đáp ứng nhu cầu học tập, nghiên cứu hay làm việc tập trung.
An ninh & tiện ích vận hành
Hệ thống an ninh nhiều lớp hoạt động liên tục 24/7, kết hợp camera giám sát và kiểm soát ra vào hiện đại, đảm bảo môi trường sống an toàn và thoải mái cho mọi gia đình.





